


























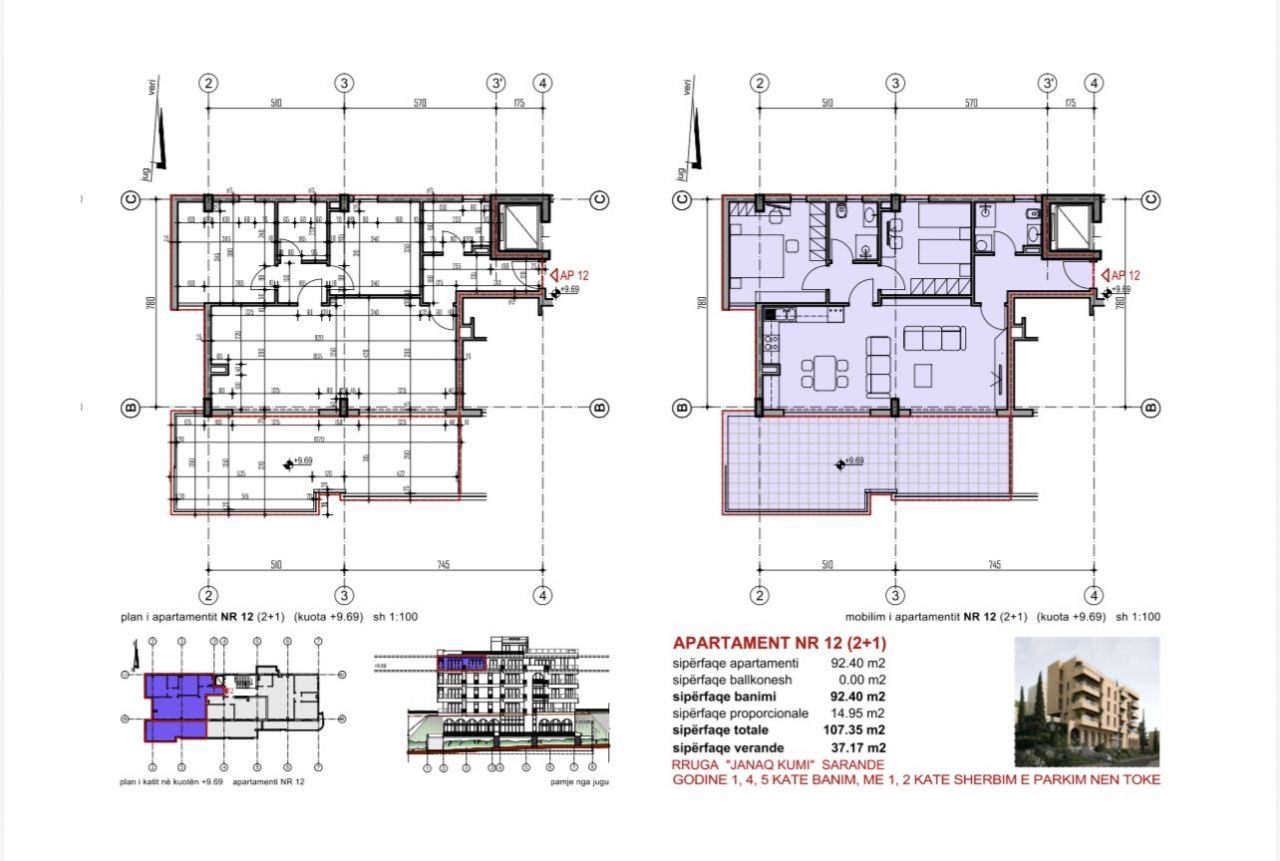
For Sale – 2+2 Apartment – 4th Floor –
For sale: a spacious 2+2 apartment located on the 4th floor of a new residential building in Sarandë. The apartment features a large living and dining area, two bedrooms, a flexible extra room, two bathrooms, and a balcony with pleasant views.
The building is newly constructed with modern materials, good insulation, and an elevator. The location is quiet, convenient, and close to shops, beaches, and main roads, making it ideal for family living or investment.
For more details or to arrange a viewing, please contact.
Under Construction Property For Sale In Sarande Albania
We use cookies to enhance your browsing experience, serve personalized content, and analyze our traffic. By clicking "Accept All", you consent to our use of cookies.