


























Продаётся – Квартира 2+1 – Строится
Продаётся современная квартира 2+1, являющаяся частью нового жилого здания, которое находится на стадии строительства. Планировка хорошо продумана: просторная гостиная с кухонной зоной, две светлые спальни и одна ванная комната.
Проект строится по современным стандартам, включая термо- и шумоизоляцию, фасад высокого качества и лифт, который будет работать после завершения строительства. Район развивается, тихий и с быстрым доступом к основным дорогам.
Квартира идеально подходит для проживания семьи или для инвестиций.
Для получения дополнительной информации или записи на просмотр — свяжитесь с нами.
Недвижимость в стадии строительства на продажу в Саранде, Албания
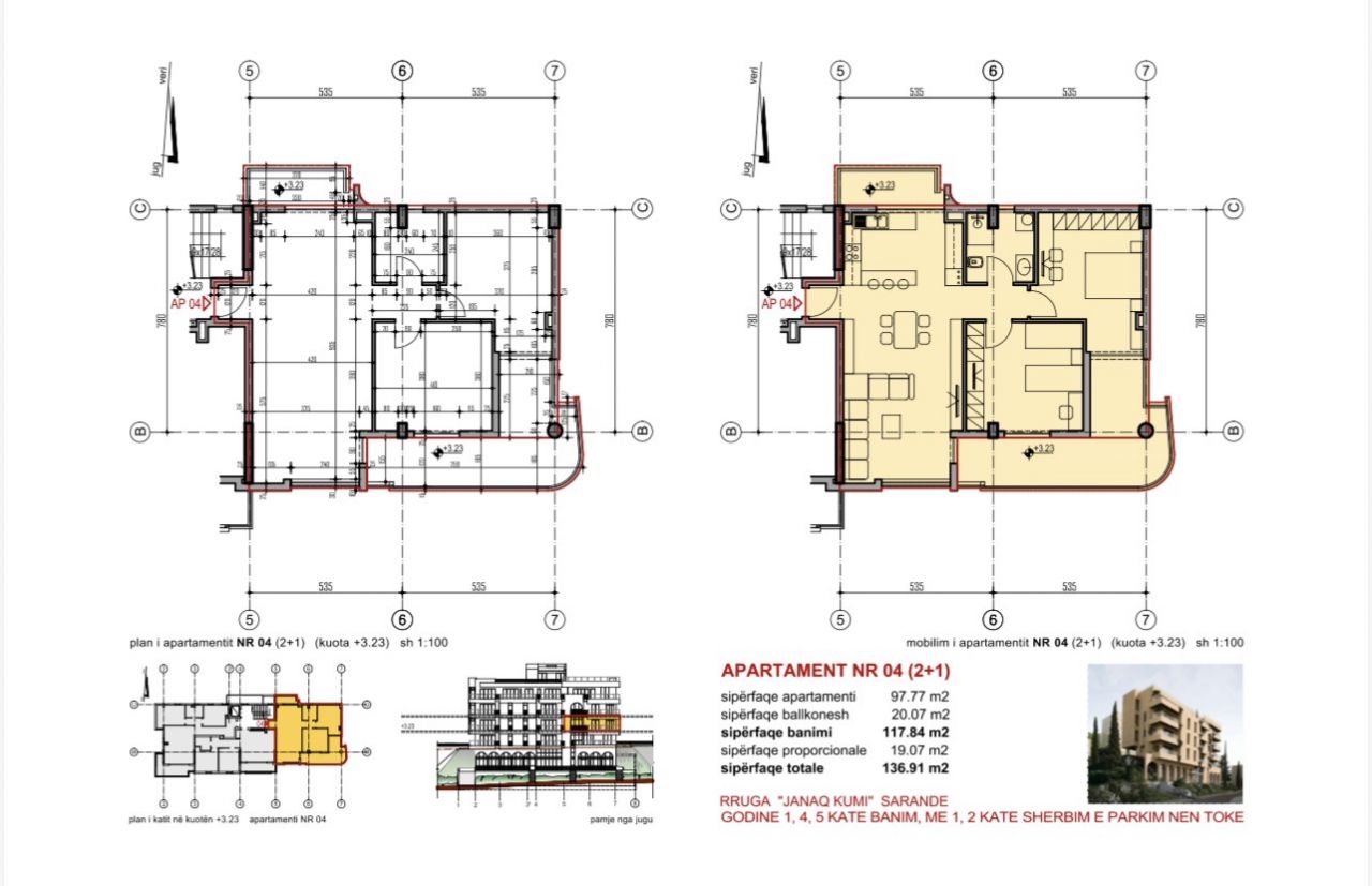
. AP-nr 04 – Общая площадь – 71.46 m²
. Общая зона – 19.07 m²
. Площадь квартиры – 117.84 m²
. Площадь балкона – 20.07 m²
. Гостиная
. Кухня
. Две спальни
. Одна ванная комната
. Балкон с видом
. Находится на втором этаже
. 5 этажей в резиденции
. Лифт в здании
. Строительство будет завершено к 2028 году
. Район посещается туристами круглый год
. Отличная возможность для инвестиций Airbnb/Booking
. Бары, рестораны, пекарня и магазины рядом
. Высококачественная застройка для комфортного проживания
. Фасад с граффити
. Система утепления капот
. Двойные стеклопакеты
. Тепло- и шумоизоляция
. 25 минут от центра города
. 20 минут от порта Саранды
Мы используем файлы cookie для улучшения вашего просмотра, предоставления персонализированного контента и анализа трафика. Нажимая "Принять все", вы соглашаетесь на использование файлов cookie.