


























Продаётся – Квартира 2+1 с Балконом – 2-й этаж – Строится
Продаётся хорошо спроектированная квартира 2+1 с балконом, расположенная на 2-м этаже нового 5-этажного жилого здания, находящегося в стадии строительства. Квартира предлагает функциональную планировку: просторная гостиная, две уютные спальни, одна ванная комната и комфортный балкон, идеально подходящий для отдыха.
Здание строится по современным стандартам, включая качественный фасад, тепло- и шумоизоляцию, а также лифт, который будет полностью функционировать после завершения строительства. Район тихий, развивающийся и обеспечивает быстрый доступ к основным дорогам и необходимым услугам.
Недвижимость подходит как для проживания, так и для инвестиций.
Для получения дополнительной информации или организации просмотра — свяжитесь с нами.
Недвижимость в стадии строительства на продажу в Саранде, Албания
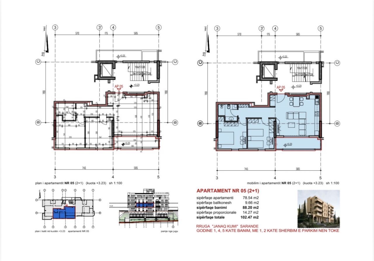
. AP-nr 05 – Общая площадь – 102.47 m²
. Общая зона – 14.27 m²
. Площадь квартиры – 88.20 m²
. Площадь балкона – 9.66 m²
. Гостиная
. Кухня
. Две спальни
. Одна ванная комната
. Балкон с видом
. Находится на втором этаже
. 5 этажей в резиденции
. Лифт в здании
. Строительство будет завершено к 2028 году
. Район посещается туристами круглый год
. Отличная возможность для инвестиций Airbnb/Booking
. Бары, рестораны, пекарня и магазины рядом
. Высококачественная застройка для комфортного проживания
. Фасад с граффити
. Система утепления капот
. Двойные стеклопакеты
. Тепло- и шумоизоляция
. 25 минут от центра города
. 20 минут от порта Саранды
Мы используем файлы cookie для улучшения вашего просмотра, предоставления персонализированного контента и анализа трафика. Нажимая "Принять все", вы соглашаетесь на использование файлов cookie.