


























Продаётся – Квартира 2+1 с Балконом – 3-й этаж – Новый жилой дом
Продаётся уютная и хорошо спланированная квартира 2+1 с балконом, расположенная на 3-м этаже нового 5-этажного жилого здания. Квартира имеет практичную планировку: гостеприимная гостиная, две светлые спальни, одна ванная комната и функциональный балкон, идеально подходящий для отдыха на свежем воздухе.
Здание находится на стадии строительства и возводится по современным стандартам, с качественной отделкой, хорошей изоляцией и лифтом, который будет полностью функционировать после завершения. Дом расположен в тихом и развивающемся районе, обеспечивая удобство, безопасность и быстрый доступ к необходимым услугам.
Квартира продаётся исключительно, что делает её отличным вариантом как для проживания, так и для инвестиций.
Для получения дополнительной информации или организации просмотра — свяжитесь с нами.
Недвижимость в стадии строительства на продажу в Саранде, Албания
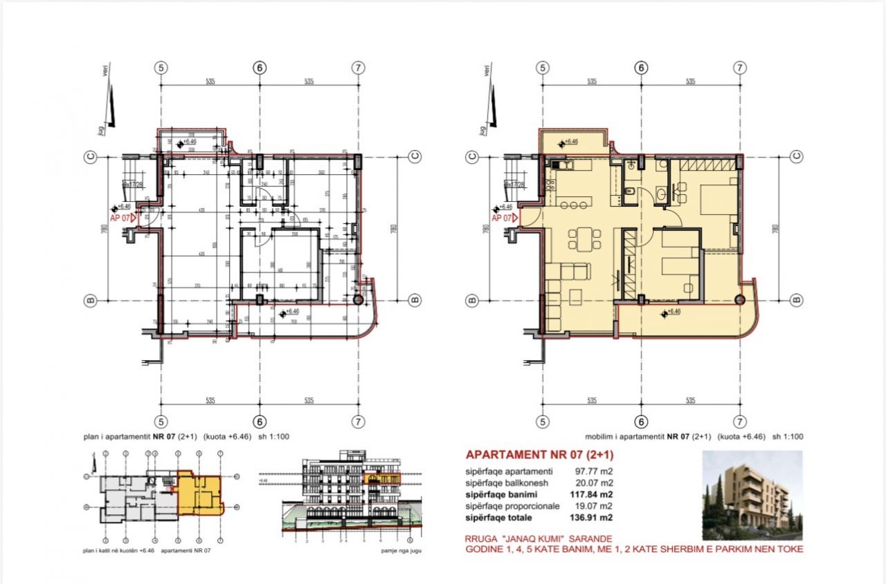
. AP-nr 07 – Общая площадь – 136.91 m²
. Общая зона – 19.07 m²
. Площадь квартиры – 117.84 m²
. Площадь балкона – 20.07 m²
. Гостиная
. Кухня
. Две спальни
. Одна ванная комната
. Балкон с видом
. Расположено на третьем этаже
. 5 этажей в резиденции
. Лифт в здании
. Строительство будет завершено к 2028 году
. Район посещается туристами круглый год
. Отличная возможность для инвестиций Airbnb/Booking
. Бары, рестораны, пекарня и магазины рядом
. Высококачественная застройка для комфортного проживания
. Фасад с граффити
. Система утепления капот
. Двойные стеклопакеты
. Тепло- и шумоизоляция
. 25 минут от центра города
. 20 минут от порта Саранды
Мы используем файлы cookie для улучшения вашего просмотра, предоставления персонализированного контента и анализа трафика. Нажимая "Принять все", вы соглашаетесь на использование файлов cookie.