


























Квартира 2+1 на продажу – 3-й этаж – Новый 5-этажный дом
Продаётся новая квартира 2+1 с балконом, расположенная на 3-м этаже современного 5-этажного жилого здания, находящегося на стадии строительства. Квартира предлагает продуманную и комфортную планировку: светлую гостиную, две спальни, хорошо спроектированную ванную комнату и уютный балкон, добавляющий дополнительное пространство.
Проект возводится с особым вниманием к качеству—прочными материалами, современным дизайном, хорошей изоляцией и лифтом, который будет доступен после завершения работ. Район тихий, безопасный и удобно связан с основными объектами и дорогами.
Квартира предлагается исключительно к продаже и является отличным выбором как для проживания, так и для долгосрочных инвестиций.
Для получения дополнительной информации или организации просмотра — свяжитесь с нами.
Недвижимость в стадии строительства на продажу в Саранде, Албания
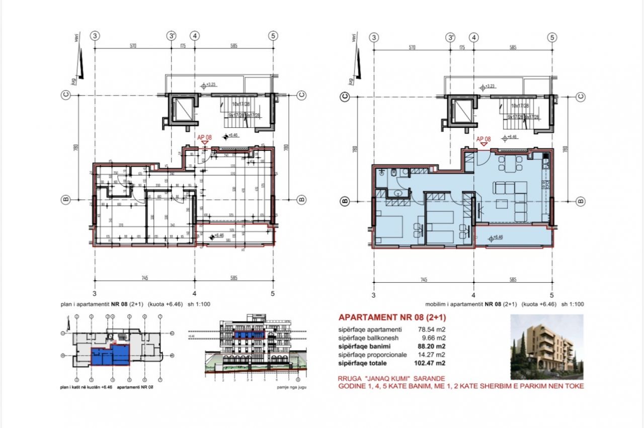
. AP-nr 08 – Общая площадь – 102.47 m²
. Общая зона – 14.27 m²
. Площадь квартиры – 88.20 m²
. Площадь балкона – 9.66 m²
. Гостиная
. Кухня
. Две спальни
. Одна ванная комната
. Балкон с видом
. Находится на третьем этаже
. 5 этажей в резиденции
. Лифт в здании
. Строительство будет завершено к 2028 году
. Район посещается туристами круглый год
. Отличная возможность для инвестиций Airbnb/Booking
. Бары, рестораны, пекарня и магазины рядом
. Высокое качество строительства для комфортного проживания
. Фасад с граффити
. Система утепления капот
. Двойные стеклопакеты
. Тепло- и шумоизоляция
. 25 минут от центра города
. 20 минут от порта Саранды
Мы используем файлы cookie для улучшения вашего просмотра, предоставления персонализированного контента и анализа трафика. Нажимая "Принять все", вы соглашаетесь на использование файлов cookie.