


























Продаётся – Квартира 2+1 с Балконом – 3-й этаж
Продаётся квартира 2+1 с балконом, расположенная на 3-м этаже нового 5-этажного жилого здания, которое находится на этапе строительства. Квартира предлагает практичную планировку: светлую гостиную, две спальни, одну ванную комнату и функциональный балкон.
Здание строится по современным стандартам, с качественными материалами, хорошей изоляцией и лифтом, который будет установлен после завершения строительства. Расположена в тихом и удобном районе с лёгким доступом к основным службам и дорогам.
Для получения дополнительной информации или организации просмотра — свяжитесь с нами.
Недвижимость в стадии строительства на продажу в Саранде, Албания
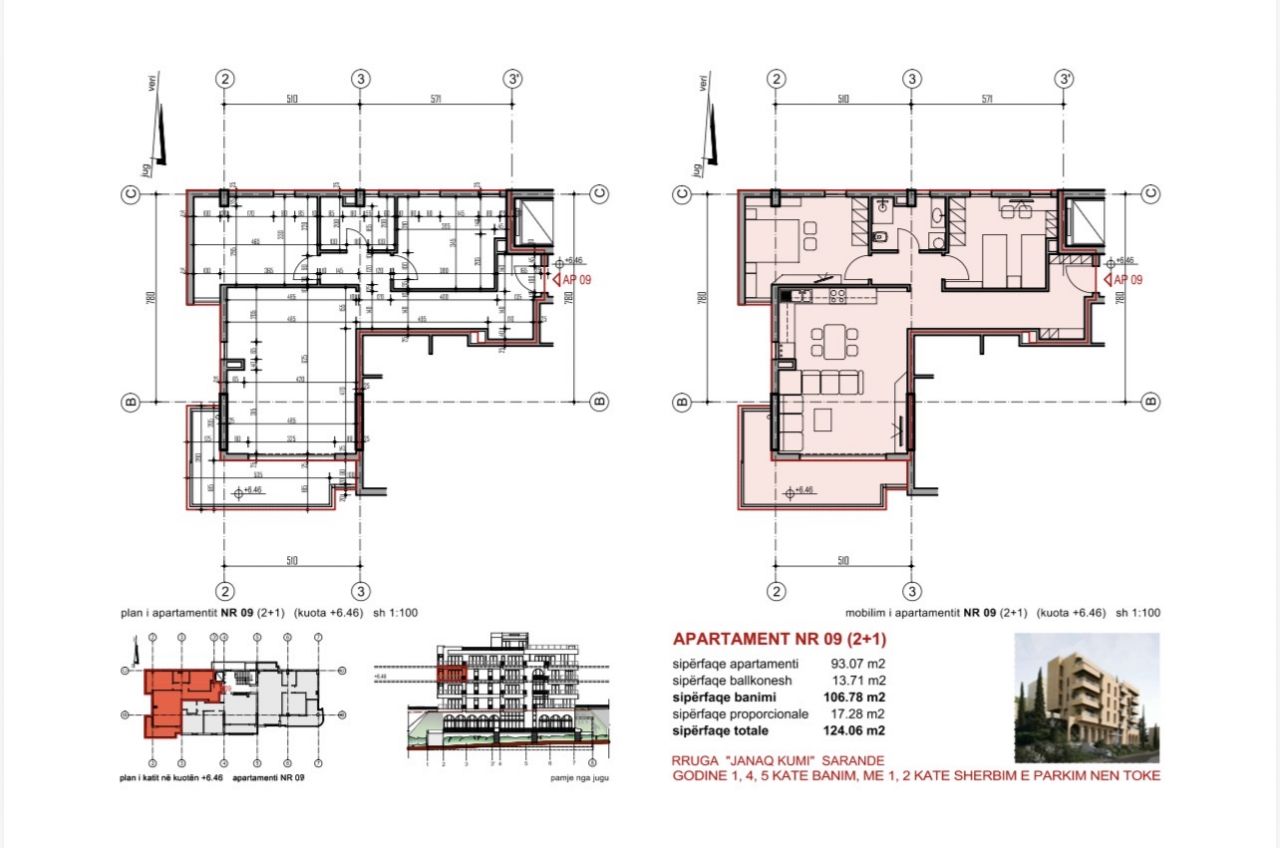
. AP-nr 09 – Общая площадь – 124.06 m²
. Общая зона – 17.28 m²
. Площадь квартиры – 106.78 m²
. Площадь балкона – 13.71 m²
. Гостиная
. Кухня
. Две спальни
. Одна ванная комната
. Балкон с видом
. Находится на третьем этаже
. 5 этажей в резиденции
. Лифт в здании
. Строительство будет завершено к 2028 году
. Район посещается туристами круглый год
. Отличная возможность для инвестиций Airbnb/Booking
. Бары, рестораны, пекарня и магазины рядом
. Высокое качество строительства для комфортного проживания
. Фасад с граффити
. Система утепления капот
. Двойные стеклопакеты
. Тепло- и шумоизоляция
. 25 минут от центра города
. 20 минут от порта Саранды
Мы используем файлы cookie для улучшения вашего просмотра, предоставления персонализированного контента и анализа трафика. Нажимая "Принять все", вы соглашаетесь на использование файлов cookie.