










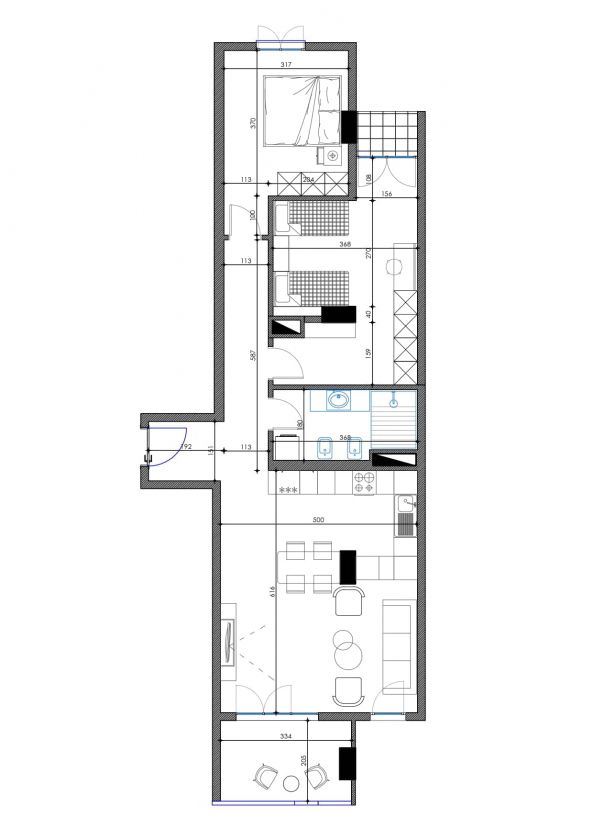
Apartment For Sale In Durres. This is an apartment in good location in Durres City near the sandy beach. It is located on the 4th floor. It offers access to all local amenities, coastal views and beaches. Ideal for a comfortable life as an investment property.
Two Bedroom Apartment For Sale In Golem Durres
We use cookies to enhance your browsing experience, serve personalized content, and analyze our traffic. By clicking "Accept All", you consent to our use of cookies.