







.jpg)
.jpg)



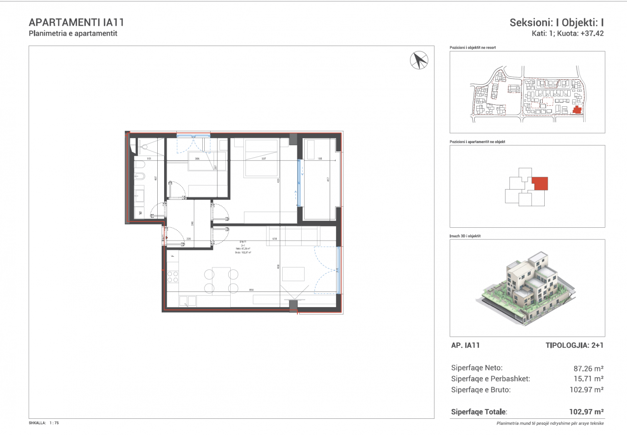
Two Bedroom Apartment For Sale In Dhermi Vlore, Albanian Riviera. Located in Dhermi, one of the most impressive areas of Vlora region. In a brand new residence still under constructions where elegance meets comfort and style. Where every corner whispers relaxation and the world feels far away with the nature calmness and the gentle sounds of Ionian sea. Perefct place to buy your dream home, just seconds away from the beach. This apartment is more than a sea side home - is a lifestyle, climate, authentic architecture of Mediterranean places but all these at a fraction of the price compared to other region hotspots!
Albania Real Estate For Sale In Vlore
Important note - Our company Albania Property Group offers extra services such as Property Management and Interior design (Apartment furnishing)
We use cookies to enhance your browsing experience, serve personalized content, and analyze our traffic. By clicking "Accept All", you consent to our use of cookies.