.jpeg)


.jpeg)


.jpeg)
.jpeg)
.jpeg)

.jpeg)
.jpeg)







Villa individuale in vendita a Golem, Albania con piscina privata. La villa è situata su una collina con vista mare. Attualmente è in fase di costruzione, con completamento previsto entro 4 mesi. Si trova in una zona molto buona, circondata da tutti i servizi necessari.
Il processo di costruzione è di alta qualità e con ottimi standard, rendendola un’eccellente opportunità di investimento. È la scelta giusta per chi desidera godere della tranquillità e del relax di una zona costiera, pur rimanendo non lontano dal centro città per usufruire di vari servizi e attività.
Villa privata situata in una zona tranquilla e panoramica, circondata da tutti i servizi necessari, a breve distanza dal centro città e a 500 metri dalla costa. In base ai parametri del processo di costruzione, la villa presenta tutte le caratteristiche per offrire un’atmosfera familiare calda e accogliente, un perfetto connubio tra comfort e stile. Una scelta ideale come abitazione principale, nonché un’eccellente opportunità di investimento con alto potenziale, anche per l’affitto.
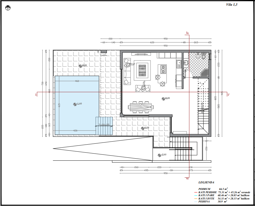
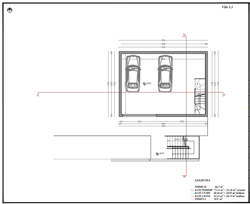
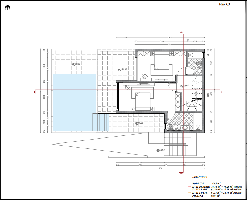
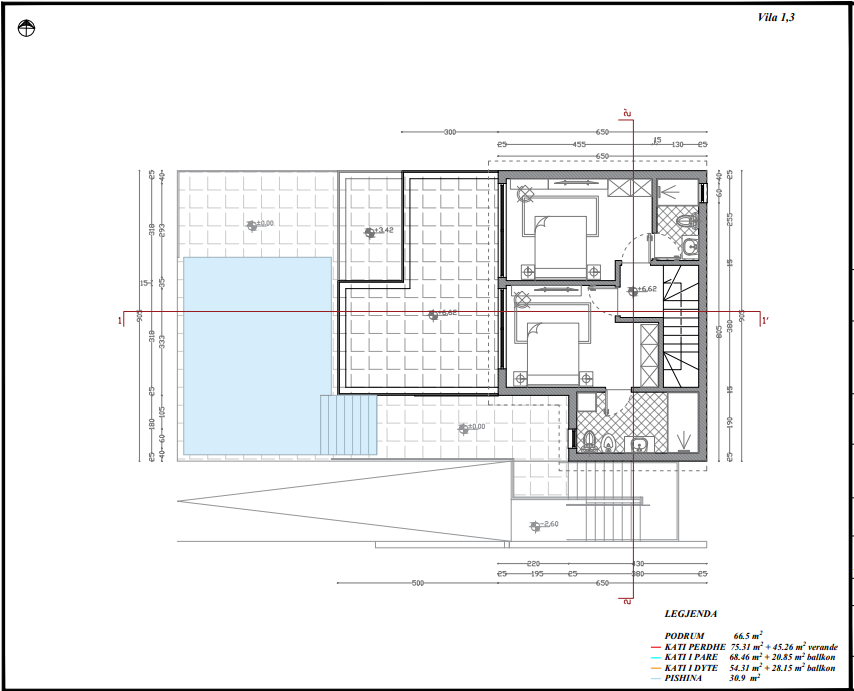
Questa proprietà su 3 livelli ha una superficie totale di 358.84 m², nello specifico:
La distribuzione interna della villa è la seguente:
Dettagli sulla zona circostante:
Utilizziamo i cookie per migliorare la tua esperienza di navigazione, fornire contenuti personalizzati e analizzare il nostro traffico. Cliccando "Accetta Tutto", acconsenti all'uso dei cookie.